hátsó tárcsa
Moderators: SONI, Pudva, Bogyo28
- Bogyo28
- Überführer
- Posts: 5459
- Joined: Sat Dec 04, 2004 9:11 pm
- ClassicFord klubtag?: Igen
- Location: Budapest-Budakalász
- Contact:
hátsó tárcsa
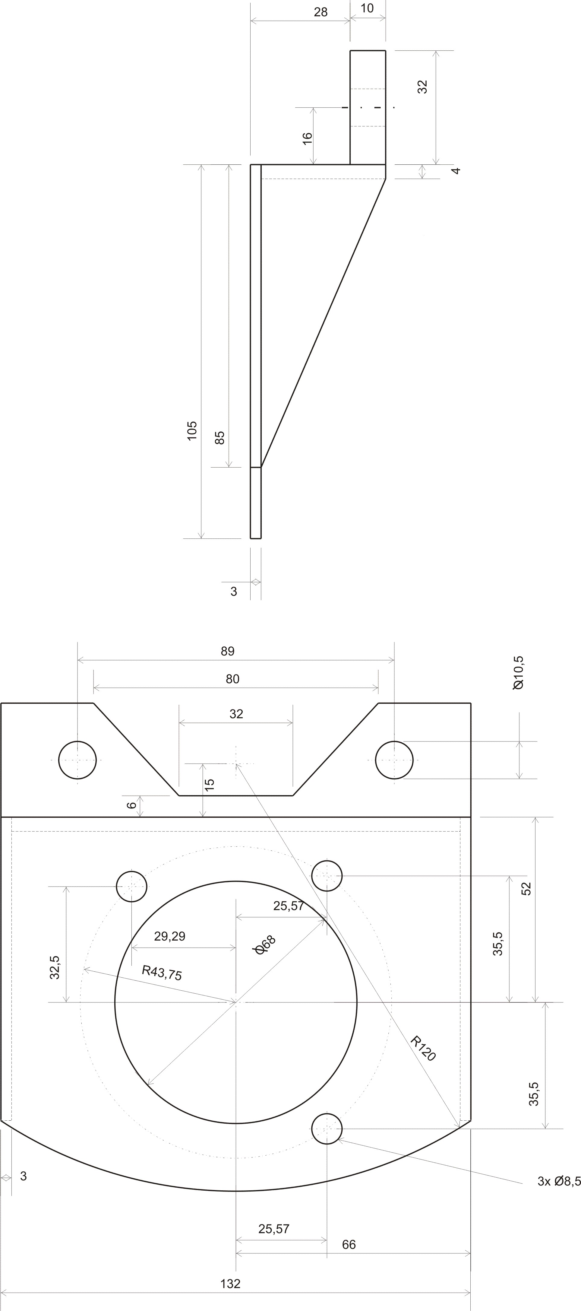
na itt egy rajz. Sajnos a 4. furat méreteit nem sikerült lelopnom a Gabe féle rajzról, mert azon nincs 4. furat, ezért ünnepélyesen szeretném felkérni vasparipa urat, hogy egyrész MEO-zza le hogy jó e amit átrajzoltam, és legyen szives megadni a 4. furat koordinátáit. Egyenlőre ez csak az egyik oldali rajza, mert ugye a 4 furat szimmetrikusan helyezkedik el a 2 oldalon. Ez a konzol escort 1.6d első tárcsával müködik, a féltengely külső átmérőjéből le kell venni kb 4 mm-t, hogy felcsusszanjon rá a tárcsa. emitten a rajz:
"...ha Detroit-nak végevan, a világnak végevan..."
"...akkor vedd meg ezt, vagy egy ilyet..."
...A Xikla...
1978 Ford Capri MKIII 2.9 V6 24V cosworth
1974 Ford Transit MKI 1.7 V4
"...akkor vedd meg ezt, vagy egy ilyet..."
...A Xikla...
1978 Ford Capri MKIII 2.9 V6 24V cosworth
1974 Ford Transit MKI 1.7 V4
- Bogyo28
- Überführer
- Posts: 5459
- Joined: Sat Dec 04, 2004 9:11 pm
- ClassicFord klubtag?: Igen
- Location: Budapest-Budakalász
- Contact:
Re: hátsó tárcsa
a kész darabról képek:
simán lemezből van, csak épp hozzáértő ember hegesztette össze...
simán lemezből van, csak épp hozzáértő ember hegesztette össze...
"...ha Detroit-nak végevan, a világnak végevan..."
"...akkor vedd meg ezt, vagy egy ilyet..."
...A Xikla...
1978 Ford Capri MKIII 2.9 V6 24V cosworth
1974 Ford Transit MKI 1.7 V4
"...akkor vedd meg ezt, vagy egy ilyet..."
...A Xikla...
1978 Ford Capri MKIII 2.9 V6 24V cosworth
1974 Ford Transit MKI 1.7 V4
- White Shark
- nagyonsokatirogat
- Posts: 1028
- Joined: Fri Feb 05, 2010 2:18 pm
- ClassicFord klubtag?: Igen
- Location: Székesfehérvár
Re: hátsó tárcsa
Profi munkának tünik,de ez az amegoldás amihez ki kell venni a féltengelyt ,mert arégi féktartó konzol helyére megy, az enyém picit egyszerűbb .Jó lett volna látnom ezt egy héttel korábban.Bogyo28 wrote:a kész darabról képek:
simán lemezből van, csak épp hozzáértő ember hegesztette össze...
- Süni
- OfficialGréTCSiTanárúr
- Posts: 2147
- Joined: Fri Sep 23, 2005 12:36 pm
- ClassicFord klubtag?: Igen
- Location: Vál
- Contact:
Re: hátsó tárcsa
Pontosítanék. Escort MK3-MK4 nem hűtött első tárcsával. (Nem csak a dízel volt sima tárcsával. 1.1-1.3-és 1.4-ből a nem ABS-esen minden ez a tárcsa van. Meg 1.8D is van evvel.)
- szszaby
- rengetegetirogatide
- Posts: 4629
- Joined: Tue Jun 28, 2005 2:37 pm
- ClassicFord klubtag?: Igen
- Location: Karcag
Re: hátsó tárcsa
Én biztos hogy a tárcsából vennék ki mint hogy a féltengelyt faragjam.Bogyo28 wrote:a féltengely külső átmérőjéből le kell venni kb 4 mm-t, hogy felcsusszanjon rá a tárcsa.:
Ford Capri MkI Essex
- Süni
- OfficialGréTCSiTanárúr
- Posts: 2147
- Joined: Fri Sep 23, 2005 12:36 pm
- ClassicFord klubtag?: Igen
- Location: Vál
- Contact:
Re: hátsó tárcsa
Nem tudsz. Nem adja ki.szszaby wrote:Én biztos hogy a tárcsából vennék ki mint hogy a féltengelyt faragjam.Bogyo28 wrote:a féltengely külső átmérőjéből le kell venni kb 4 mm-t, hogy felcsusszanjon rá a tárcsa.:
Re: hátsó tárcsa
sziasztok itt mindenki tárcsás hátsóféket készít?:)
-
Natalie Driver Gabe
Re: hátsó tárcsa
Nekem lassan fél éve van fenn ez a konzol és bevált .White Shark wrote:Profi munkának tünik,de ez az amegoldás amihez ki kell venni a féltengelyt ,mert arégi féktartó konzol helyére megy, az enyém picit egyszerűbb .Jó lett volna látnom ezt egy héttel korábban.Bogyo28 wrote:a kész darabról képek:
simán lemezből van, csak épp hozzáértő ember hegesztette össze...
Eléggé mélyre helyezi a nyerget is.
Az igaz hogy sajnos ki kell érte rántani a féltengelyt de nekem megérte.
Már érdekes hogy nálam alig 1 mm-ert kellet kivenni a féltegelyből.
De talán mert az MK1.
- White Shark
- nagyonsokatirogat
- Posts: 1028
- Joined: Fri Feb 05, 2010 2:18 pm
- ClassicFord klubtag?: Igen
- Location: Székesfehérvár
Re: hátsó tárcsa
Csak ahosszában van különbség,atöbbi méret azonos.Natalie Driver Gabe wrote:Nekem lassan fél éve van fenn ez a konzol és bevált .White Shark wrote:Profi munkának tünik,de ez az amegoldás amihez ki kell venni a féltengelyt ,mert arégi féktartó konzol helyére megy, az enyém picit egyszerűbb .Jó lett volna látnom ezt egy héttel korábban.Bogyo28 wrote:a kész darabról képek:
simán lemezből van, csak épp hozzáértő ember hegesztette össze...
Eléggé mélyre helyezi a nyerget is.
Az igaz hogy sajnos ki kell érte rántani a féltengelyt de nekem megérte.
Már érdekes hogy nálam alig 1 mm-ert kellet kivenni a féltegelyből.
De talán mert az MK1.
- White Shark
- nagyonsokatirogat
- Posts: 1028
- Joined: Fri Feb 05, 2010 2:18 pm
- ClassicFord klubtag?: Igen
- Location: Székesfehérvár
Re: hátsó tárcsa
Sajnos tényleg nem adja ki ,a tárcsa fala elég vékony,én is óckodtam a féltengely faragástól de a Gabe hoz hasonlóan ,talán 1-2 mm-t kellett belőle levenni ,elég tartás maradt a 4 tőcsavar mellett.A féltengelyt egyszer kell megcsinálni tárcsa cserénél már nem kell esztergálni csak feltolni az újat.Süni wrote:Nem tudsz. Nem adja ki.szszaby wrote:Én biztos hogy a tárcsából vennék ki mint hogy a féltengelyt faragjam.Bogyo28 wrote:a féltengely külső átmérőjéből le kell venni kb 4 mm-t, hogy felcsusszanjon rá a tárcsa.:
- Bogyo28
- Überführer
- Posts: 5459
- Joined: Sat Dec 04, 2004 9:11 pm
- ClassicFord klubtag?: Igen
- Location: Budapest-Budakalász
- Contact:
Re: hátsó tárcsa
hát csak most jutott el hozzám is...a másik meg hogy igy szerintem stabilabb mint 3 csavarral, meg a féltengelyt ugyis ki kell venni hogy levedd a dobfék lemezét...White Shark wrote:Profi munkának tünik,de ez az amegoldás amihez ki kell venni a féltengelyt ,mert arégi féktartó konzol helyére megy, az enyém picit egyszerűbb .Jó lett volna látnom ezt egy héttel korábban.Bogyo28 wrote:a kész darabról képek:
simán lemezből van, csak épp hozzáértő ember hegesztette össze...
"...ha Detroit-nak végevan, a világnak végevan..."
"...akkor vedd meg ezt, vagy egy ilyet..."
...A Xikla...
1978 Ford Capri MKIII 2.9 V6 24V cosworth
1974 Ford Transit MKI 1.7 V4
"...akkor vedd meg ezt, vagy egy ilyet..."
...A Xikla...
1978 Ford Capri MKIII 2.9 V6 24V cosworth
1974 Ford Transit MKI 1.7 V4
- Bogyo28
- Überführer
- Posts: 5459
- Joined: Sat Dec 04, 2004 9:11 pm
- ClassicFord klubtag?: Igen
- Location: Budapest-Budakalász
- Contact:
Re: hátsó tárcsa
a féltengely külső része semmit nem tart, nem számít hogy leveszel belőle 1,5 mm-t. elleneben a féktárcsát nem gyengíteném el...szszaby wrote:Én biztos hogy a tárcsából vennék ki mint hogy a féltengelyt faragjam.Bogyo28 wrote:a féltengely külső átmérőjéből le kell venni kb 4 mm-t, hogy felcsusszanjon rá a tárcsa.:
"...ha Detroit-nak végevan, a világnak végevan..."
"...akkor vedd meg ezt, vagy egy ilyet..."
...A Xikla...
1978 Ford Capri MKIII 2.9 V6 24V cosworth
1974 Ford Transit MKI 1.7 V4
"...akkor vedd meg ezt, vagy egy ilyet..."
...A Xikla...
1978 Ford Capri MKIII 2.9 V6 24V cosworth
1974 Ford Transit MKI 1.7 V4
- szszaby
- rengetegetirogatide
- Posts: 4629
- Joined: Tue Jun 28, 2005 2:37 pm
- ClassicFord klubtag?: Igen
- Location: Karcag
Re: hátsó tárcsa
Ja, akkor a nagy átmérőből kell levenni nem az agyból.Süni wrote:Nem tudsz. Nem adja ki.szszaby wrote:Én biztos hogy a tárcsából vennék ki mint hogy a féltengelyt faragjam.Bogyo28 wrote:a féltengely külső átmérőjéből le kell venni kb 4 mm-t, hogy felcsusszanjon rá a tárcsa.:
Ford Capri MkI Essex
- capriv6
- egyedülisszerelhet
- Posts: 530
- Joined: Sun Oct 22, 2006 12:25 am
- ClassicFord klubtag?: Igen
- Contact:
Re: hátsó tárcsa
Mikor készítettem a fékrendszert nekem 1mm kellett kivenni a tárcsából.
Nekem kb 2003-óta van fent és a tárcsát módosítottam!
Szerintem az autó gyártása során kicsit különböző méretre sikerültek a féltengelyek így ebből adódhat a pontatlanság ami beszereléskor jelentkezik.
Mindenkinek azt mondanám hogy mielőtt kiszedne a tárcsából v. a féltengelyből előtte mérjen rá feltétlen és csak a szükséges felesleget távolítsa el! (mérést megér)
Mind a két megoldás jó lehet.
Nem tudsz. Nem adja ki.[/quote]
Nekem kb 2003-óta van fent és a tárcsát módosítottam!
Szerintem az autó gyártása során kicsit különböző méretre sikerültek a féltengelyek így ebből adódhat a pontatlanság ami beszereléskor jelentkezik.
Mindenkinek azt mondanám hogy mielőtt kiszedne a tárcsából v. a féltengelyből előtte mérjen rá feltétlen és csak a szükséges felesleget távolítsa el! (mérést megér)
Mind a két megoldás jó lehet.
Én biztos hogy a tárcsából vennék ki mint hogy a féltengelyt faragjam.[/quote]Bogyo28 wrote:a féltengely külső átmérőjéből le kell venni kb 4 mm-t, hogy felcsusszanjon rá a tárcsa.:
Nem tudsz. Nem adja ki.[/quote]
- Blant
- nagyonsokatirogat
- Posts: 1352
- Joined: Sun Dec 05, 2004 6:24 pm
- ClassicFord klubtag?: Igen
- Location: Budapest
Re: hátsó tárcsa
Én is ezt a megoldást tervezem, de vajon működik fiesta első fékkel is? Mert az éppen van itthon... augusztusban bontom a fityót! Az 221-es tárcsa, 48mm-es nyereg. ilyet rakott fel valaki? Szerintem az egesz miskulancia nagyon hasonlo lehet az escortéhoz...
A hangom, a rangom tartom pardon
NEM ELADÓ!
A kedvem, a lelkem, a nemem, a szlengem
NEMM ELLADÓÓ
'78 Ford Capri mkIII Ghia 2,8i EFI, az imádott!
'85 Ford Fiesta mkII 1.6D, az Istencsászár, az 5literrel rohangálós, a hidegben is beindulós.
NEM ELADÓ!
A kedvem, a lelkem, a nemem, a szlengem
NEMM ELLADÓÓ
'78 Ford Capri mkIII Ghia 2,8i EFI, az imádott!
'85 Ford Fiesta mkII 1.6D, az Istencsászár, az 5literrel rohangálós, a hidegben is beindulós.